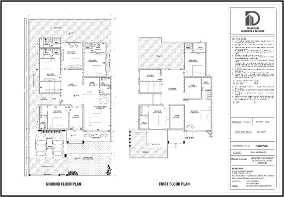
This project is located at Lodhran, Punjab, Pakistan. The scope of that project is Architecture design, Structure design, Services design and construction as per drawings. It’s a double story building with modern elevation views.

Ground& First Floor Plan

INTERIOR SPACES

FRONT ELEVATION
Residential Projects
Dreamburg Designers & Builders proudly unveils our latest residential masterpiece, a testament to our unwavering commitment to architectural excellence. This project seamlessly integrates contemporary design elements with timeless aesthetics, creating a haven that reflects modern living at its finest. From innovative floor plans to captivating exteriors, every detail is crafted with precision and passion. Dreamburg’s residential project epitomizes a harmonious blend of functionality and style, setting a new standard for luxurious living. Welcome to a world where dreams come to life through exceptional architectural design with Dreamburg Designers & Builders.